上海淞江減震器集團有限公司官方網站為您介紹:【秦山核電站】外圍系統 52”橡膠接頭膨脹節驗貨現場信息,我們為全*各大核電項目配套橡膠接頭膨脹節產品,我們是*家從事橡膠接頭膨脹節的生產廠家,歡迎到我們工廠實地參觀考察。
以下為真實性秦山核電站工作人員驗貨現場,請勿轉載。
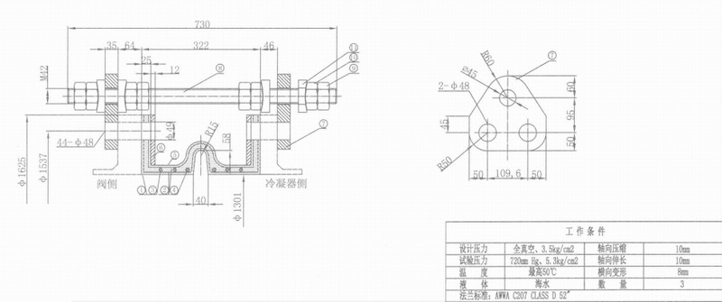
名稱:52”橡膠接頭膨脹節
口徑:DN1300mm
法蘭標準:AWWA-C207-CLASSD-52"
軸向壓縮:10mm
軸向伸長:10mm
橫向變形:8mm
壓力:全真空,3.5kg/cm2
試驗壓力:720mm Hg 真空,5.3kg/cm2
溫度:.高50℃
液體:海水
長度:322mm
法蘭材質:Q235(電鍍處理)
橡膠材質:氯丁橡膠
簾線布層數:6層
內層橡膠厚度:5mm
內面橡膠:氯丁橡膠
加強層:聚酯簾布
加強環:20#
外面橡膠:氯丁橡膠
擋環:Q235-B
限位耳板:Q235-B
限位螺桿:Q235-B
螺母:Q235-B
球形螺母:Q235-B
球形墊片:Q235-B
橡膠膨脹節圖紙:

以下是網絡上對秦山核電站的介紹:
秦山核電站是中*自行設計、建造和運營管理的.*座30萬千瓦壓水堆核電站,地處浙江省嘉興市海鹽縣.由中*核工業集團公司*控股,秦山核電公司負責運行管理.
秦山核電站采用目前世界上技術成熟的壓水堆,核島內采用燃料包殼、壓力殼和安全殼3道屏障,能承受.限事故引起的內壓 、高溫和各種自然災害.*期工程1984年開工,1991年建成投入運行.年發電量為17 億千瓦時.二期工程將在原址上擴建2臺60萬千瓦發電機組,1996年已開工.三期工程由中*和加拿大.合作,采用加拿大提*的重水型反應堆技術,建設兩臺70萬千瓦發電機組,于2003年建成.
2015年1月12日17時,秦山核電廠擴建項目方家山核電工程2號機組成功并網發電.*此,秦山核電基地現有的9臺機組全部投產發電,總裝機容量達到656.4萬千瓦,年發電量約500億千瓦時,成為目前*內核電機組數量.多、堆型.豐富、裝機.大的核電基地.
*期工程由中華人民共和*核工業部主導推進,于1985年動工,1991年12月.次實現并網發電,成為當時中*大陸投產的.**套核電機組.機組在測試運行了兩年之后,正式投入商業運營.
*期建成后不久,秦山核電站又先后開工建設了二期和三期工程,并引進*外技術力量和*內地方.資本參與建造.二期工程依然由中*自主承擔設計、建造和運營任務,采用壓水型反應堆技術,安裝兩臺60萬千瓦發電機組,于2004年建成,并正在籌劃繼續擴建.
三期工程由中*和加拿大.合作,采用加拿大提*的重水型反應堆技術,建設兩臺70萬千瓦發電機組,于2003年建成.
秦山核電站的總裝機容量為290萬千瓦,已成為中**處大型的核電基地.
在秦山核電站所在的浙江省目前有兩座可為核電站安全穩定運行提*配套的抽水蓄能電站——天荒坪和桐柏.天荒坪抽水蓄能電站位于浙江省安吉縣,安裝6臺30萬千瓦發電機組,總裝機容量180萬千瓦.桐柏抽水蓄能電站位于浙江省天臺縣,安裝4臺30萬千瓦發電機組,總裝機容量120萬千瓦.